Midgårdsgränd 7
Snart till salu
Friliggande villa-Frönäs

Midgårdsgränd 7

Tillfälle - tvåplansvilla i gott skick med sjönära läge, låga boendekostnader & badplats intill!

Välskött tvåplansvilla med sjöutsikt i populära Frönäs väntar nu på en ny ägare att ta vid! Fyra bra sovrum, två helkaklade badrum och allrum med utgång till stor trädäckad altan! Fasaden är ommålad ? samt vattenburen värme via frånluftsvärmepump ? Frönäsområdet är mycket barnvänligt och helt utan genomfartstrafik med kort gångavstånd till såväl badplats med badbryggor, utegym, lekplats som till centrum med affärer, restauranger och goda kommunikationer. Välkommen hem!

Bild 2
Adress
Midgårdsgränd 7
Område
Frönäs, Gnesta
Bostadstyp
Friliggande villa
Boarea
128 kvm
Rum
5 rum
Tomtarea
772 kvm
Fastighetsbeteckning
Gnesta Frönäs 4:15
Byggnadsår
2006
Pris
4 450 000 kr, eller högstbjudande
Intresseanmälan

Välkommen att anmäla ditt intresse!

Anmäl intresse
Johanna Blomqvist
Johanna Blomqvist
Fastighetsmäklare
Se alla bilder
Beskrivning
Fakta
Planritning
Karta

Tillfälle - tvåplansvilla i gott skick med sjönära läge, låga boendekostnader & badplats intill!

Välkommen till denna välskötta tvåplansvilla med attraktivt hörnläge och generösa gräsytor för både lek och umgänge med fin utsikt över Frösjön intill. Här bor du bekvämt i ett hem där nuvarande ägare tagit väl hand om huset, vilket innebär att inga större eller kostsamma renoveringar väntar. Bostaden har vattenburen värme via frånluftsvärmepump med värmeåtervinning (2024), vilket bidrar till låga driftkostnader och ett behagligt inomhusklimat. Träfasaden på både huvudbyggnad och carport är ommålade 2024?.

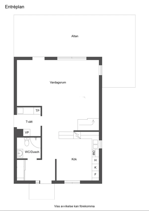
Entré sker via en takad farstukvist till en välkomnande hall med tåligt klinkergolv och gott om förvaring via Elfa-system med skjutdörrar. Intill finns duschrum med wc, tvättställ med spegelskåp, handdukstork (el) samt dusch med glasväggar. Helkaklade väggar och klinkergolv med golvvärme. Vidare öppnar bostaden upp sig mot ett ljust och trivsamt allrum med fönster i två väderstreck och utgång till en trädäckad altan som löper längs två sidor av huset, härifrån njuter du av utsikten över Frösjön och har gott om plats för både loungemöbler, matgrupp och grill. Köket är fullutrustat med vita ramluckor, laminatbänkskiva och kaklat ovan arbetsytor. Här finns spis, fläkt, diskmaskin samt kyl och frys i fullhöjd. Intill ligger en praktisk tvättstuga med grovingång, klinkergolv, tvättmaskin och torktumlare i stapel samt rostfri ho.
Övervåningen rymmer fyra bra sovrum med bra om garderobsförvaring och helkaklat badrum med wc, tvättställskommod, spegelskåp, badkar samt handdukstork (el).

Samtliga rum har genomgående ekparkettgolv och nästan hela bostaden är smakfullt ommålad, vilket skapar ett enhetligt och modernt helhetsintryck.

Tomten är en av de större i området och erbjuder fina gräsytor med utsikt mot sjön. Här finns lekstuga för de mindre barnen samt en skyddad uteplats högre upp på tomten, omgiven av syrenhäckar. Asfalterad uppfart med parkeringsmöjligheter samt carport med isolerat förråd.

Populärt och barnvänligt område med charmiga gränder ner mot vattnet. Här finns badplats, bryggor, lekplats, utegym och sommaröppet café. Möjlighet finns även till båtplats i närliggande bryggförening. Dessutom når du snabbt vackra promenadstråk och Sörmlandsleden – perfekt för den som uppskattar natur och friluftsliv. Frönäsområdet med charmiga gränder mot vattnet är mycket barnvänligt och helt utan genomfartstrafik. Dess popularitet beror till stor del på att här har man det mesta inom räckhåll, alldeles intill finns badplats med sandstrand och brygga, lekpark, utegym och sommaröppet café. Möjlighet finns till båtplats i bryggförening intill. På ett par minuter promenerar du till centrum vart du finner goda kommunikationer till arbete, studier eller nöjen. Till Stockholm med regionaltåg tar det drygt 35 minuter och med pendeltåg ca 60 minuter. Buss trafikerar till Nyköping vart gymnasium finns. I centrum har du även ett bra utbud av service såsom affärer, restauranger, apotek, systembolag, vårdcentral etc.

En bostad som erbjuder det bästa av två världar, lugn och naturnära livsstil med smidig pendling.

Varmt välkommen att anmäla ditt intresse för visning!

Fastighet
Bostadstyp
Friliggande villa
Adress
Midgårdsgränd 7, 646 34 Gnesta
Område
Frönäs
Rum
5 rum varav 4 sovrum
Storlek
128 kvm
Fastighetsbeteckning
Gnesta Frönäs 4:15
Pris
4 450 000 kr, eller högstbjudande
Bostad
Typ
Friliggande villa
Upplåtelseform
Frikopt
Fastighetsbeteckning
Frönäs 4:15
Adress
Midgårdsgränd 7, 646 34 Gnesta
Område
Frönäs, Gnesta
Boarea
128 kvm
Antal rum
5 rum, varav 4 sovrum
Areakälla
taxeringsinformation
Byggnaden
Byggnadstyp: 1½-plansvilla
Byggår: 2006
Fasad: Stående träfasad
Stomme: Trä
Fönster: 3-glas isoler
Tak: Betongpannor
Grundläggning: Betongplatta på mark med underliggande isolering
Uppvärmning: Vattenburen värme via frånluftsvärmepump -24
Ventilation: Mekanisk till- och frånluftsventilation med värmeåtervinning (FTX)
Vatten och avlopp: Kommunalt vatten året om. Kommunalt avlopp
Övrigt om byggnaden
Larm installerat via ?
Tomten
Tomtarea: 772 kvm

Tomten är en av de större i området och erbjuder fina gräsytor med utsikt mot sjön. Här finns lekstuga för de mindre barnen samt en skyddad uteplats högre upp på tomten, omgiven av syrenhäckar.
Renoveringar
Fasaden ommålad?
Frånluftsvärmepump utbytt?
Elfasystem hallen?
Övriga utrymmen
Fristående carport med vidbyggt isolerat förråd.
Bilplats
Asfalterad uppfart med parkeringsmöjligheter samt carport med isolerat förråd.
TV- och internetanslutning
Internet: Fiber.
Energideklaration
Status: Utförd
Utförd: 2017-12-07
Energiklass: C
Energiprestanda, specifik energianvändning: 52 kWh/kvm och år
Besiktigad
Ja
Säljarförsäkrat: Ja
Inskrivningar
Servitut, GA, Samfälligheter etc: Gemensamhetsanläggning: Gnesta frönäs ga:3 ändamål: Vägar
Gemensamhetsanläggning: Gnesta frönäs ga:4 ändamål: Avloppsanläggning, Elledning och/eller belysning, Grönområden, Garage och/eller parkering, Kvartersanläggning
Gemensamhetsanläggning: Gnesta frönäs ga:5 ändamål: Radio- TV och/eller tele
Samfällighet: Gnesta frönäs s:2

Planbestämmelser: Detaljplan (2004-12-16)
Ekonomi
Pris
4 450 000 kr, eller högstbjudande
Taxering
Typkod: 220, Småhusenhet, bebyggd
Taxeringsår: 2024
Taxeringsvärde mark: 1 166 000 kr
Taxeringsvärde byggnad: 2 568 000 kr
Summa taxeringsvärde: 3 734 000 kr
Pantbrev
Antal pantbrev: 4
Summa pantbrev: 3 017 500 kr
Driftkostnad
Uppvärmning
23 000 kr/år
Vatten/avlopp
12 000 kr/år
Samfällighet
6 000 kr/år
Summa
41 000 kr/år
Driftskostnaden är baserad på nuvarande ägares driftskostnader för år 2025. Uppvärmning är inklusive nätavgift och hushållsel och beräknat på årsförbrukning om 9 500 kWh (2 vuxna och 3 barn). I samfällighetsavgiften ingår skötsel av gemensamma ytor i området, gränder med belysning, lekplats, gästparkering och miljöhus (renhållning). Kostnad för VillaHem försäkring tillkommet.
Fastighetsavgift
10 425 kr/år
Entréplan
Övre plan

Ska du sälja din bostad?

Om du funderar du på att sälja är en värdering ett naturligt första steg. Sörmlands Bostadsbyrå erbjuder professionella värderingar baserade på både erfarenhet och aktuell marknadsanalys. Kontakta oss för att boka ett möte, så berättar vi mer om hur vi kan hjälpa dig vidare.